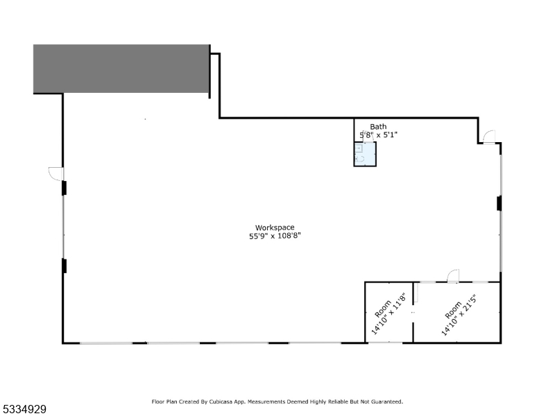
Main floor warehouse space available in the Botany section of Clifton. New concrete floor and repaint. Total usable 6200sqft consist of an office (468 sq), 2 overhead drive through, private bathroom, fenced shared parking lot with easy street parking, close to route 46, Garden State Pkway, and I-80. Building shared with an electrical company, lighting company, and chiropractor office. Modified gross lease. Prefer 3-5 years term but negotiable. Tenant build out or landlord can for additional cost. Ceiling height: Ceiling to beams its 12’2 . The beams are 2′ tall so the ceiling in other areas is 14’2 . There are some pipes and ceiling fans in areas. Floor to ceiling fan is 11’7″ Garage door height is 11’7″
Fetching AI response...
Up Montclair Plaza, Montclair Twp., Essex
Fetching AI response...
Designed & Developed by eGrove
to save your favourite homes and more
Log in with emailDon't have an account? Sign up
Enter your email address and we will send you a link to change your password.
to save your favourite homes and more
Sign up with emailAlready have an account? Log in
Chat with us
